All of the houses listed here are listed from smallest to largest. All floor plans can be customized to suit your needs. We can also modify any floor plan you have or start from scratch.

Floor plan of a 240 Sqft ADU/Tiny house with storage/sleeping loft

T3 - 240 sqft Tiny House

This ADU is 11ft wide by 20ft long with a full-size bathroom and a storage/sleeping loft.

Floor plan of a 240 Sqft ADU/Tiny house with storage/sleeping loft
Floor plan of a 288 Sqft ADU/Tiny house with storage/sleeping loft

T4 - 288 sqft Tiny House

This ADU/Tiny House is 12ft wide by 24ft long with a Separate Kitchen, Full-Size Bathroom, and a storage/sleeping loft.

Floor plan of a 288 Sqft ADU/Tiny house with storage/sleeping loft
Floor plan of a 312 Sqft ADU/Tiny house with storage/sleeping loft

T2 - 312 sqft Tiny House

This ADU/Tiny House is 13ft wide by 24ft long with a full-size bathroom, a galley kitchen, and a storage/sleeping loft.

Floor plan of a 312 Sqft ADU/Tiny house with storage/sleeping loft
Floor plan of a 352 Sqft ADU/Tiny house with storage/sleeping loft

T1 - 352 sqft Tiny House

This ADU/Tiny House is 16ft wide by 16ft long plus a front porch. This home has a full-size bathroom, a galley kitchen, and a storage/sleeping loft.

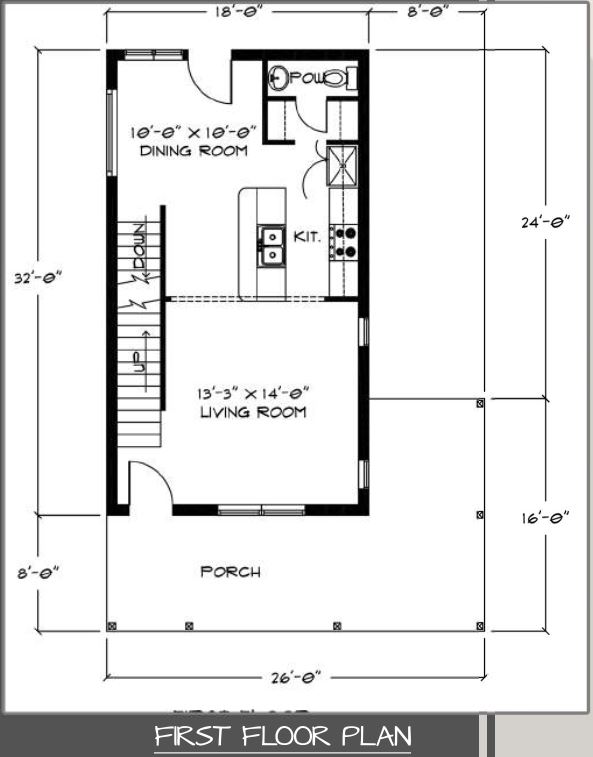
T5 - 450 sqft Tiny House

This is the only tiny house with stairs to the upstairs bedroom.  It is 12ft wide by 28ft long. There is a large patio upstairs off the bedroom that can be made smaller to make for a larger bedroom if desired.

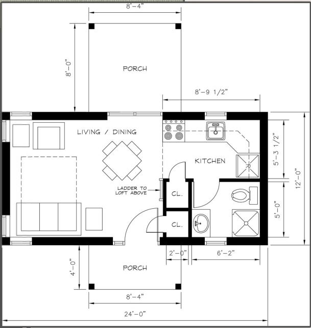
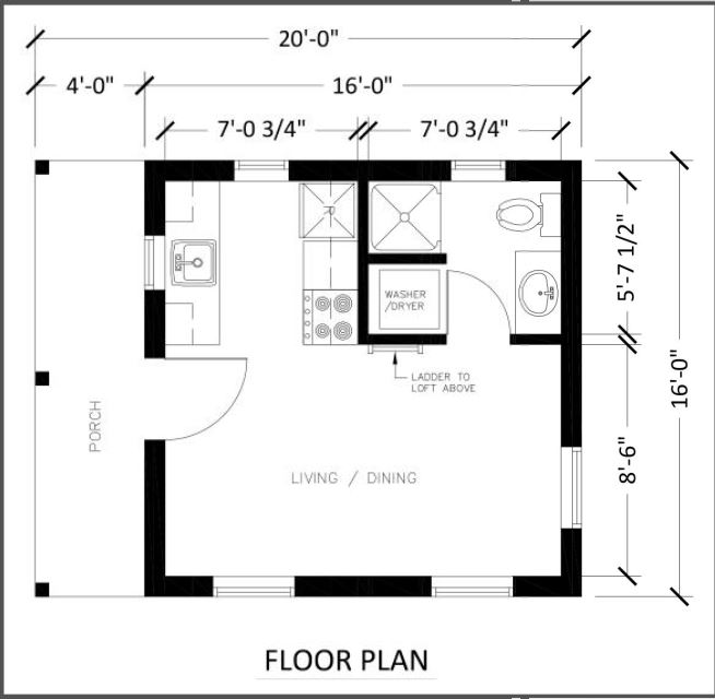
T7 - 470sqft Tiny House

This ADU/Tiny House is 13ft wide by 28ft long plus a back porch. This home has a full-size bathroom, a kitchen large enough for an island, and a storage/sleeping loft.

175 - 900sqft Home

This 900 sqft house has 2 bedrooms, a full-size bathroom, a large living area with a full-size kitchen, and an island with seating.

173 - 1040sqft Home

This 1040 sqft 2 story house has 3 bedrooms, 2 full-size bathrooms, a large living area with a full-size kitchen with room for an island.

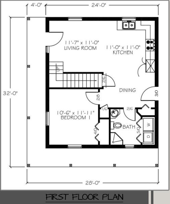
170 - 1152sqft Home

This 1152 sqft 2 story house has 2 bedrooms, 1.5  bathrooms, a large living area, a full-size kitchen with an island, and a wrap-around porch.

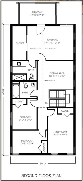
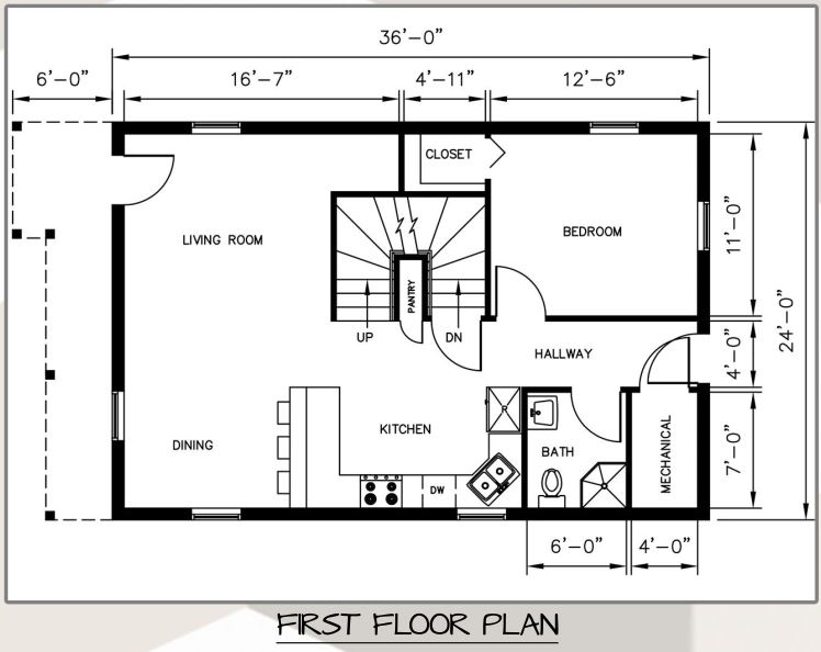
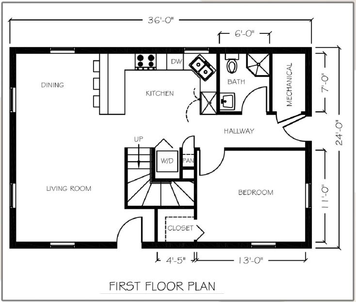
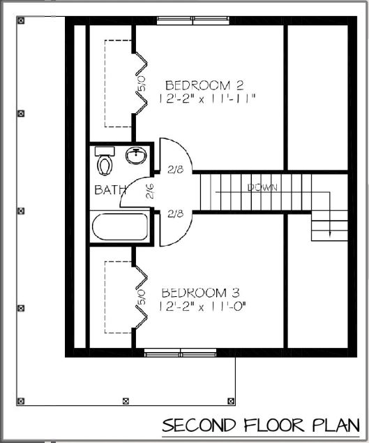
169B - 1226sqft Home

This 1226 sqft 2 story house has 3 bedrooms, 2  bathrooms, a large living area, a full-size kitchen with room for an island, and a wrap-around porch.

104 - 1429 sqft Home

This 1429 sqft 2 story house has 3 bedrooms, 2  bathrooms, a large living area, and a full-size kitchen.

105- 1430 sqft Home

This 1429 sqft 2 story house has 3 bedrooms, 2  bathrooms, a large living area, and a full-size kitchen.

172- 1434 sqft Home

This 1429 sqft 2 story house has 3 bedrooms, 2  bathrooms, a large living area, and a full-size kitchen.

103- 1462 sqft Home

This 1429 sqft 2 story house has 3 bedrooms, 2  bathrooms, a large living area, and a full-size kitchen.

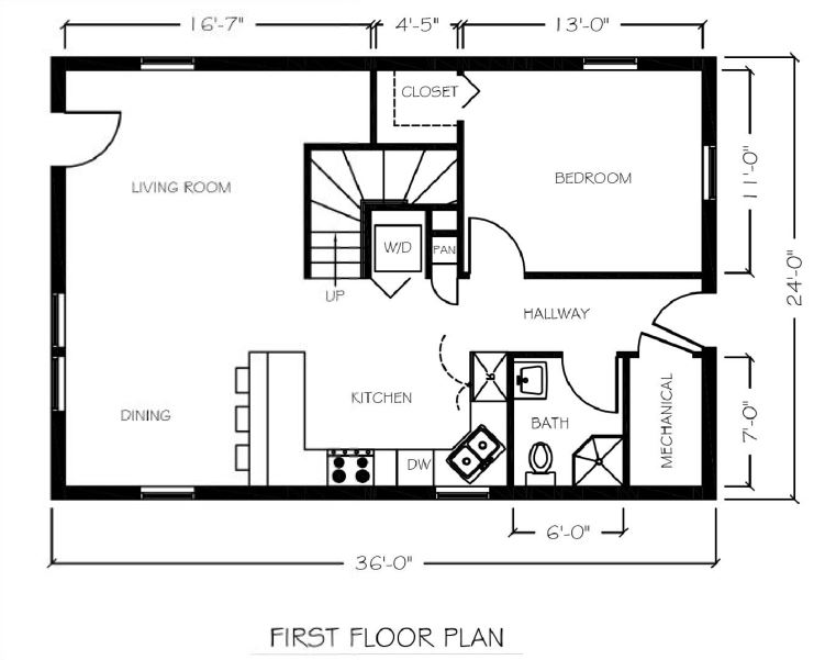
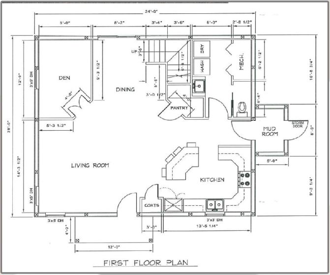
111- 1752 sqft Home

This 1752 sqft 2 story house has 2 bedrooms, 1.5  bathrooms, an office, a large living area, and a full-size kitchen with an island.

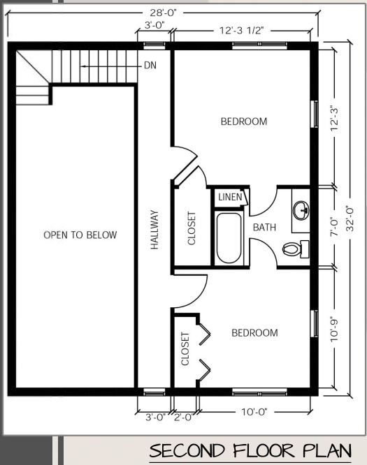
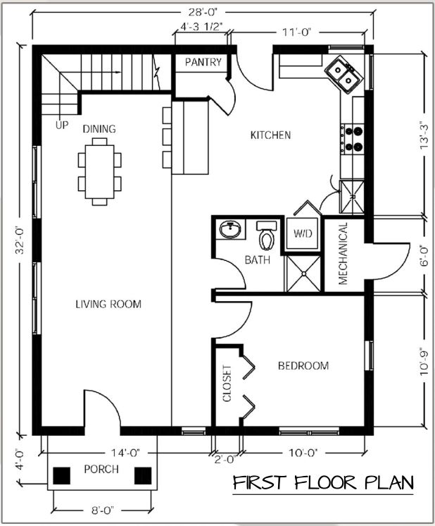
101 - 2184 sqft Home

This 2184 sqft 2 story house has 2 bedrooms, 2.5  bathrooms, a large living area, a full-size kitchen with an island, and an attached garage.

136- 2240 sqft Home

This 2184 sqft 2 story house has 4 bedrooms, 2.5  bathrooms, a master suite, a large living area, and a chef's kitchen with an island.